Pré-réservez votre terrain au lotissement de La Connelais
La commune ouvre les pré-réservations pour les 30 premières parcelles du futur lotissement de La Connelais.
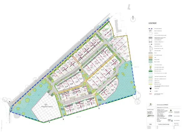
Acquis par la commune, le terrain situé à la Connelais accueillera prochainement un nouveau lotissement qui bénéficiera d’un emplacement pratique, tout en offrant un cadre naturel de qualité.
Le quartier est en effet situé à proximité immédiate de l’école publique, du supermarché, du pôle de santé et des équipements de loisirs,
Le projet prévoit un aménagement laissant une large place au végétal, aux cheminements doux et à la gestion durable de l’eau, avec notamment des liaisons piétonnes le long du ruisseau du Fougeray.
A partir de 30 000 € TTC
La commercialisation concerne actuellement uniquement la tranche 1, comprenant les lots 1 à 30.
Les terrains, entièrement viabilisés et libres de constructeur, proposent des surfaces comprises entre 250 m² et 493 m². Les prix débutent à partir de 30 000 € TTC.
La pré-réservation permet de sécuriser dès maintenant une parcelle, tout en prenant le temps de définir son projet de construction. Les acquéreurs peuvent ainsi anticiper leurs démarches et travailler sereinement leur future maison, en vue d’un démarrage des constructions prévu à partir du premier trimestre 2027.
Les travaux de viabilisation sont programmés pour le quatrième trimestre 2026.
À terme, le projet prévoit une extension du lotissement avec la réalisation de petits collectifs, afin de favoriser une mixité résidentielle, dans le respect de la qualité paysagère du site.
Pour toute information ou pour effectuer une pré-réservation, les personnes intéressées peuvent contacter la mairie par mail ou par téléphone.
Tél. : 02 99 34 49 80
Email : urbanisme@mairie-pipriac.fr
Vous pouvez consulter le plan et le règlement du lotissement ci-dessous.
Actualité publiée le vendredi 27 mars 2026